
Can I Do My Own Measured Survey?
A measured survey captures accurate dimensions of a building or site to produce drawings like plans, elevations, and sections. These form the basis for design work. While professionals may handle complex surveys, smaller projects can often be measured using just a tape or laser measure, pen, and paper.
#YourComments
An absolute superstar! Incredibly approachable and professional — really listened to my needs and went above and beyond. I truly valued how attentive they were and how detail-oriented they were with my project. If you require Building Control Regulations drawings or other architectural designs and are reading this, look no further — you’ll be in excellent hands. Strongly recommended! Without a doubt, I’ll work with them again in the future.
Yan J.

How To Sketch It Out?
1. Prepare Your Tools
- Tape measure (ideally 5m+ or a laser distance measurer). If you only have a tape measure, it is usually best if there are two of you, but you can do it alone, it will just take a bit longer. With a laser however, it is pretty easy to get everything measured alone.
- Graph paper or a sketchbook.
- Pencil & eraser.
- Smartphone or camera (for reference photos).
- Optional: a phone/tablet app like MagicPlan or RoomScan
2. Start with a Rough Sketch
Draw a rough floor plan of the space — don't worry about scale yet. Include:
- Walls
- Doors
- Windows
- Fixed furniture/appliances
- Any steps or level changes
Mark each room clearly and label features like “Window A” or “Door 1”.
3. Take Measurements
Measure:
- Overall dimensions of each room (length x width).
- Wall-to-wall lengths.
- Door and window widths and heights.
- Floor-to-ceiling height.
- Distances from walls to doors/windows.
- Niches or structural features (columns, beams, etc.).
Tip: Measure twice to confirm! Write down both for safety
4. Take Reference Photos
Photograph every wall and corner. Include:
- Doorways and window positions.
- Fixed elements like radiators, beams, fireplaces.
- The ceiling and floor.
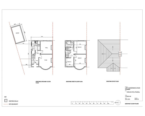
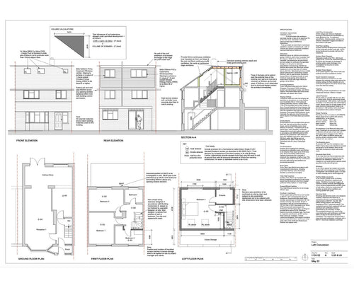
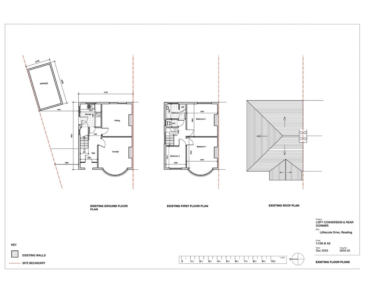
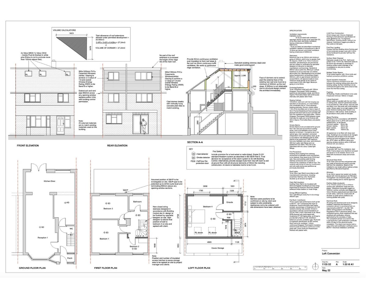
SAMPLE SKETCHES

