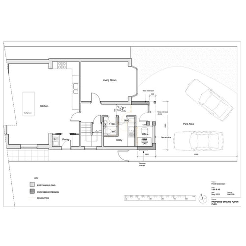
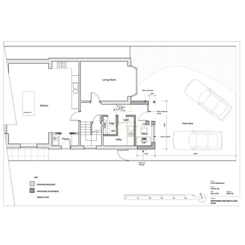
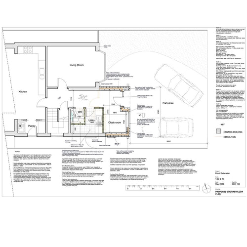
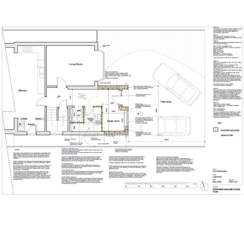
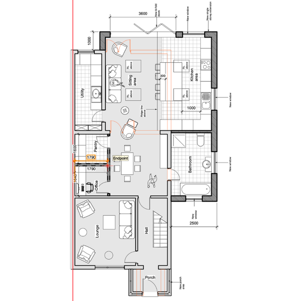
Front Extension in Hertfordshire
FINAL

STEP 1

STEP 2

STEP 3

"Fantastic from start to finish—very clear about what was needed and provided an incredible service. I've already recommended this to friends and family and will 100% be using the service again for future projects."
Andy W.
"I was in need of amended drawing plans to submit to the local council for planning permission. I provided PDF copies of the current plans of my house that had been done by a local architect. From these, new drawings were produced to address the amendments I required. I am genuinely impressed by the drawings—they are of much better quality than the ones supplied by my local architect. There was patience in understanding my requirements, and I was sent drafts to approve before the final versions were delivered. I will be using the service again for the Building Regulation plans once my new plans have been approved. A great professional and quality service. Thank you! 😊"
Nadeem S.
"Absolutely first class. Excellent communication and did a superb job at a very reasonable price. Would have absolutely no hesitation to recommend her to others and will definite use again when the need arises."
Henry C.