
Building Regulations – Pay 20% Deposit to Start
Price shown is the 20% deposit to begin your project. The total package price is £500. The remaining £100 (80%) will be invoiced once your final drawings are delivered. Work starts once the deposit is paid.
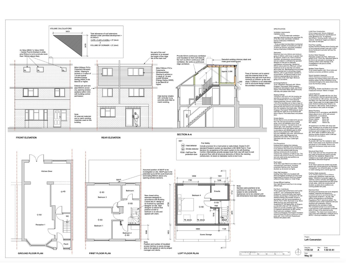
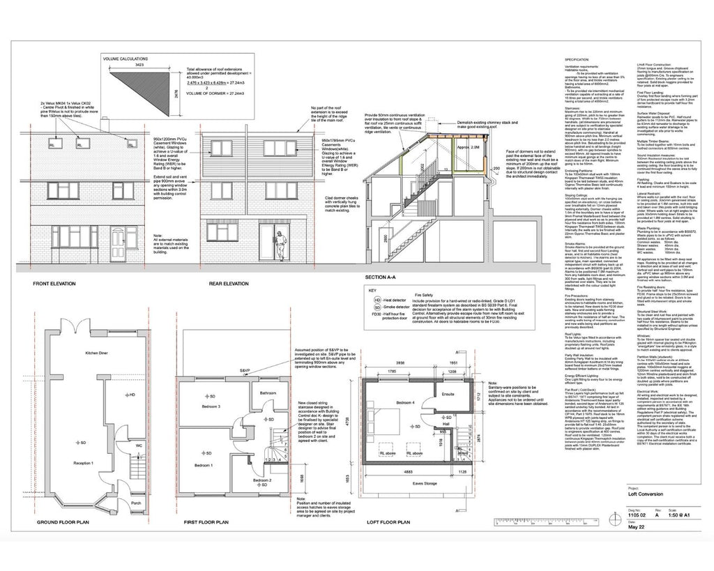
If your project requires Building Control approval, we’ll prepare Building Regulation drawings that meet current UK standards — ensuring your extension complies with all necessary requirements.
What’s included:
-
Detailed construction drawings and specifications (materials, insulation, drainage, fire safety, etc.)
-
SAP calculations (where required for energy efficiency)
Delivery: Within 14 working days after receiving your project details and payment.
Structural engineer’s calculations are not included.